메뉴 건너뛰기

Accessories and Consumables

Crucibles, Vacuum deposition targets and Materials testing fixtures

(주)연진에스텍

Flexural bending test fixtures

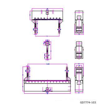
ASTM D7774 Modular Bending Fixture for Plastics Fatigue Tests | GD7774-103

PRODUCT INFORMATION

Model# GD7774-103

GD7774-103 Modular Bending Fixture helps measure the flexural fatigue properties of plastics in accordance with ASTM D7774. This bending fixture is configurable to test 3 and 4 point bends for Procedure A and B of ASTM D7774. This bending fixture is applicable to rigid and semi-rigid plastics.

Procedure A of ASTM D7774

For Procedure A requires a three point bending fixture. A specimen of rectangular cross section is braced by two double-sided supports and is loaded by means of a double-sided loading nose midway between the supports. A support span-to-depth ratio of 16:1 is used. The specimen is cyclically loaded equally in the positive and negative directions to a specific stress or strain level at a uniform frequency until the specimen ruptures or yields.

Procedure B of ASTM D7774

For Procedure B a 4 point bend fixture is required. A specimen of rectangular cross section is braced by two double-sided supports and is loaded by means of two double-sided loading noses, each an equal distance from the adjacent support. Load span-to-support span ratios can be 1:2 or 1:3. The specimen is cyclically loaded equally in the positive and negative directions to a specific stress or strain level at a uniform frequency until the specimen ruptures or yields.

 


 

Product Literature

액세서리 및 소모품의 다른 글

문의
하기